Explore Custom Home Plans
Choose A Home Plan or Design Your Own
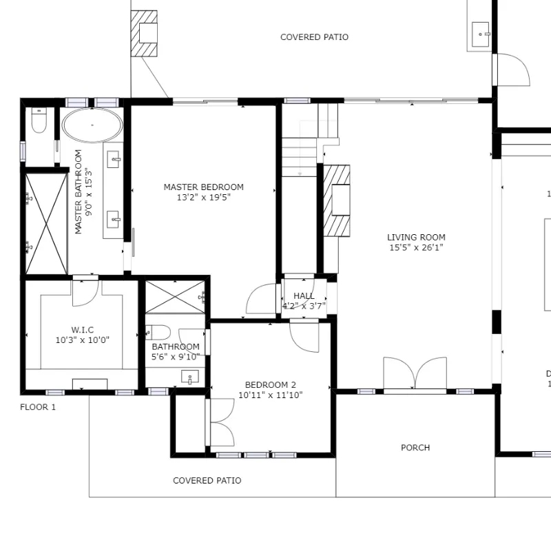
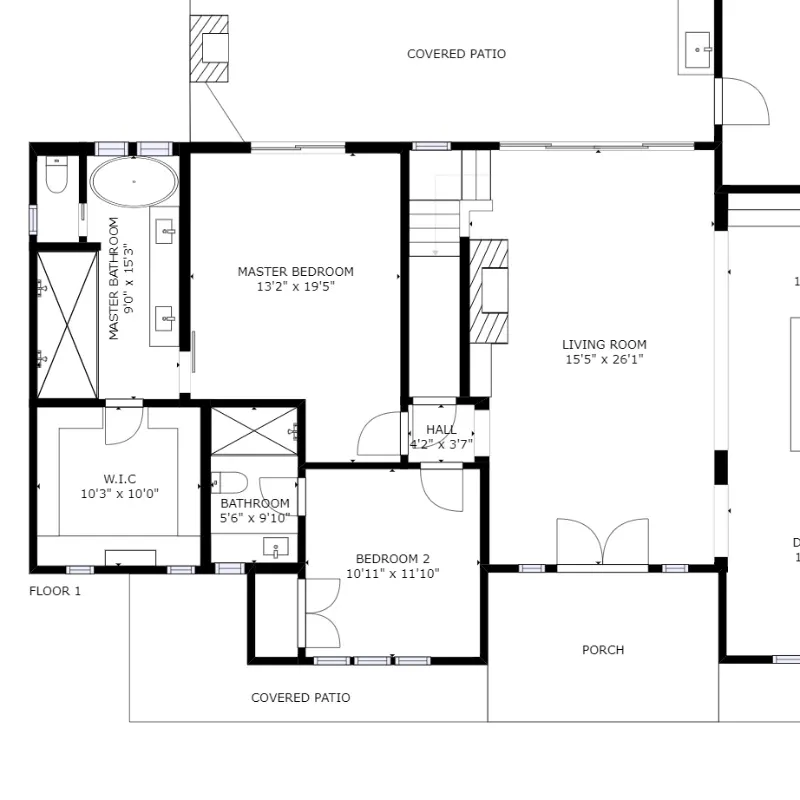
Dream Home Construction can custom build any home you dream up – and we work with you to ensure your custom home is built to your specifications. Below are a few examples of home plans that we have custom built in the North Mississippi area. Be sure to explore the 360 virtual tours. Together, we can make your dreams become a reality! Contact us today: 662-890-0647
Choose A Home Plan or Design Your Own
Choose a home plan or filter by Sq Ft.



